Disaster measures防災対策
セレンディップインターナショナルスクールの防災対策について下記の通り定める。
-
1. 防災意識の普及
校⾧主導のもと、教職員及び学生に災害及び防災に関する知識の啓発及び安全教育を資料を用いて行う。
実施時期:入学時のオリエンテーションで実施(4月、10月の2回)
対象:新規学生、全教職員 -
2. 防災活動
校⾧主導のもと、災害か学生及び教職員の生命及び身体を保護するため、次の通り防災活動を実施する。
1. 防災訓練を定期的に行う。
実施時期:避難訓練(4月、12月の年に2回)、消火訓練(4月、12月の年に2回)
対象:在籍学生、全教職員
実施内容:
(1)避難訓練:避難経路の確認、避難場所への集合方法、避難時の連絡手段
(2)消火訓練: 消火器を使って火を消す方法の訓練、消火器の正しい持ち方や操作方法を学ぶ。
2. 救護・救援訓練を専門家の指導により、教職員及び学生に知識と技術を修得させる。
3. 施設、設備及び土地並びに危険物等について、安全対策の措置を講じる。
ア.建物及び付属施設内外の安全点検を定期的に実施し、異常を発見した場合は、速やかに補強、修復する。
イ.建物内のロッカー、書棚の転倒、落下等を防止するための措置を講じる。
ウ.危険状況(気候等)の的確な把握に務める。
4. 事務員に情報の伝達方法を周知させる。
ア.教職員及び学生間の伝達体制。
イ.教職員及び学生の自宅等の連絡方法。
ウ.地域内外日本語学校との情報連絡網。
5. 第1避難場所の周知徹底と避難対策を実施する。(別表1)
ア.廊下等には物を置かない。
イ.避難経路を明確にしておく。
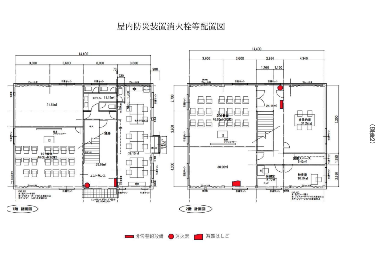
6. 屋内防災装置・消火栓等の配置を明確にする。(別表2)
7. 災害時において必要な応急処置用薬品等を保健室に常備しておく。 -
3. 重大な災害が授業中に発生した場合の対応・措置
1. 避難誘導
以下の安全な方法により学生を避難誘導する。
(1)火災の場合:火が天井に移る前であれば初期消火にあたる。
(2)地震の場合:学生を窓ガラスから離れさせる。ドアを開けて出口を確保する。落下物に注意する。
2. 避難後の対応
けが人が発生した場合は、協力して安全な場所へ避難誘導させ応急処置を講じる。
避難後は、状況判断を的確に行うため正しい情報を得てから行動する。
3.授業開始までの流れ
(1)情報の発信
・連絡網を活用し、休校、自宅待機、リモート授業等を事務員が連絡する。
・非常食、水、薬、衣類などの学生の日常生活に必要なものが揃っているかどうかを確認し必要であればそれらを支給できる場所や団体の案内をする。
(2)教育活動の再開
専門家が、当校の校舎の安全性を確認した時から教育活動を再開するものとする。

-
役割分担校長:
対応・役割分担等指揮校長・事務長:
各班の統括、情報収集、災害の状況の把握、教職員の安否確認主任・本務教員・生活指導担当者・事務員:
学生の安否確認、家族等との連絡
安否確認の取れていない学生に対し、アパート等に直接出向くなど手段を講じてすみやかに確認を行う。
学生の救護校長・事務員:
被害状況の把握
学校の電気、ガス、水道、情報通信等ライフラインの早期復旧 -
役割分担校長:
対応・役割分担等指揮校長・事務長:
各班の統括、情報収集、災害の状況の把握、教職員の安否確認主任・本務教員・生活指導担当者:
学生の安否確認、家族等との連絡
学生の救護校長・事務員:
被害状況の把握
学校の電気、ガス、水道、情報通信等ライフラインの早期復旧